Detail projektučíslo 1
Minirampa pro Skatepark Blansko
Navrhovatel/ka: Robert Hořava
Zdůvodnění návrhu:
Blanenský skatepark ročně využívají stovky návštěvníků – dětí, mládeže, mladých dospělých a rodičů, kteří zde tráví aktivně svůj volný čas. Vybavení skateparku je v současnosti stále nedostatečné pro využití v plné míře.
Návrh řešení:
V rámci projektu navrhujeme rozšíření skateparku o minirampu a street bednu. Minirampa je jednou ze základních součástí dobře vybavených skateparků po celé České republice. Návrh vychází z výstupů Komunitního projektu zabývající se prací s dětmi, dospívajícími a jejich rodinami, tento projekt probíhá v rámci evropského projektu MAS Moravský kras.
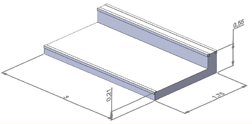
Cena minirampy je 740 520,- Kč včetně DPH, včetně umístění na skatepark (výška rádiusu 1,7 m; šířka 6m; délka 11,5 m). Cena bedny je 58 080,- Kč včetně DPH, (výška: 0,55 m, šířka: 1,75 m, délka 3 m).
Jako poslední bude třeba zajistit bednění, mezi zadek stávajících překážek a novou minirampou. Částka by měla být, do zbývajících 50 000. Přikládám předběžnou cenovou nabídku od firmy, která skatepark zhotovila.


